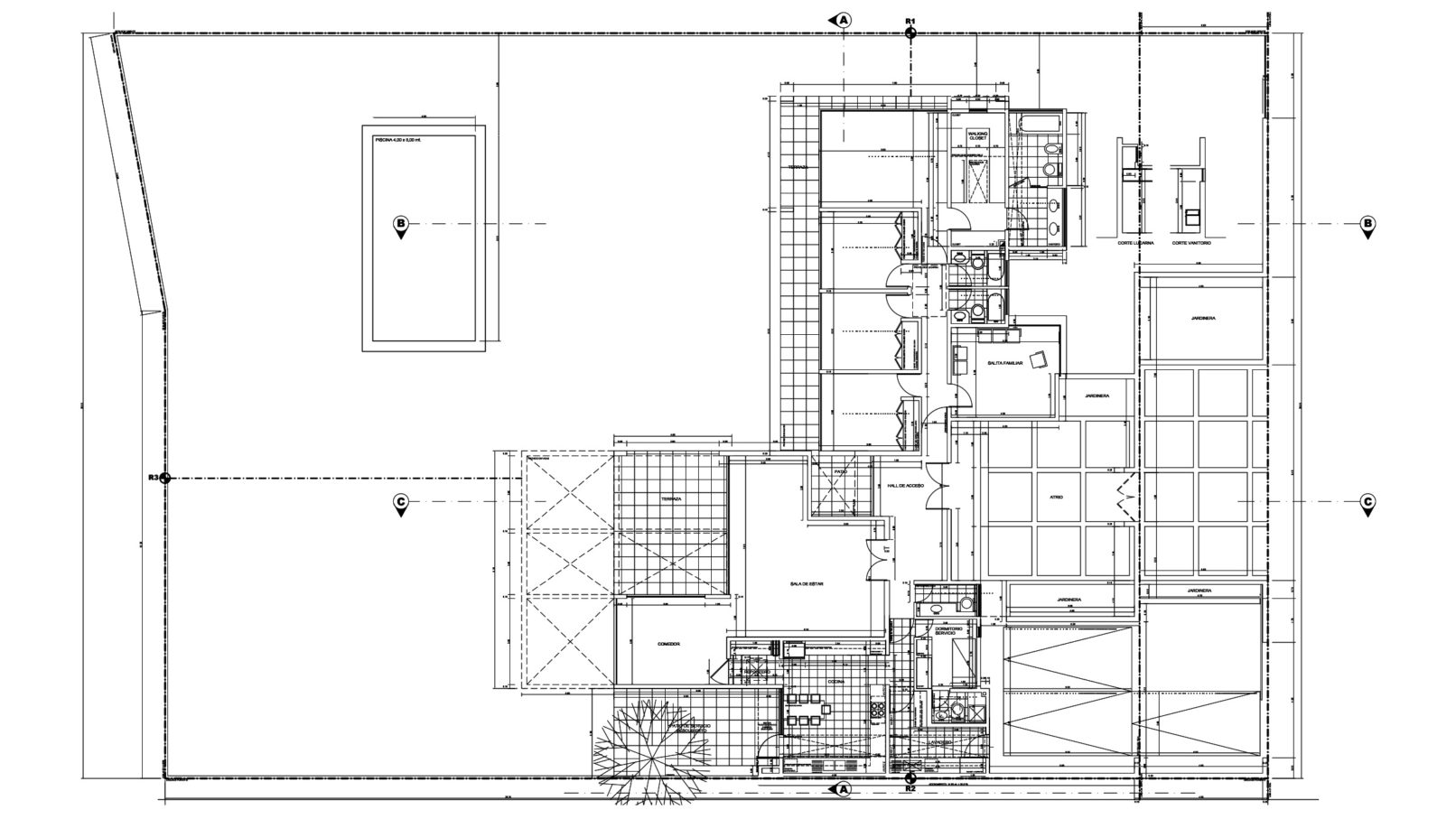
Casa Romero
Arquitecto: Miguel Alemparte Lyon
Arquitecto Colaborador: Nicolás Alemparte Lyon
Propietario: Cristián Romero Avendaño
Ubicación: Av. Bernardo Larraín 12376 / Lo Barnechea
Superficie Construida: 270 M2
Materialidad Predominante: Hormigón Armado
Año De Proyecto: 2001
Año De Construcción: 2001-2002



